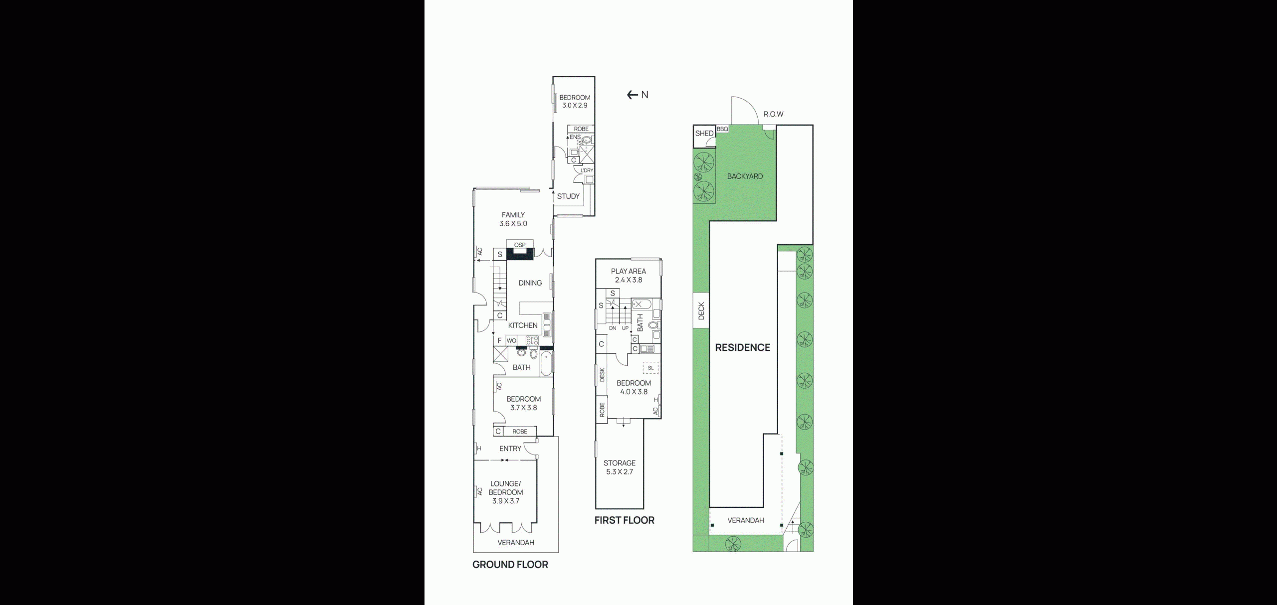
26 Bishop St, Brunswick, VIC
- Home Recent Purchases 26 Bishop St, Brunswick, VIC
Nuno Raimundo's Other Recent Purchases
-
Nuno Raimundo10A Plunkett St, Bellfield, VICView Details-
3
-
2
-
292 m²
-
2
-
-
Nuno Raimundo15 Bank Street, Albert Park, VICView Details-
3
-
2
-
1,071 m²
-
1
-
-
Nuno Raimundo10 Plunkett St, Bellfield, VICView Details-
3
-
2
-
311 m²
-
1
-
-
Nuno Raimundo19 Rollo Street, Coburg North, VICView Details-
3
-
2
-
227 m²
-
2
-
-
Nuno Raimundo1 Alsace St, Brunswick East, VICView Details-
3
-
1
-
431 m²
-
-
Nuno Raimundo21 Valerie St, Lalor, VICView Details-
4
-
2
-
534 m²
-
2
-