image

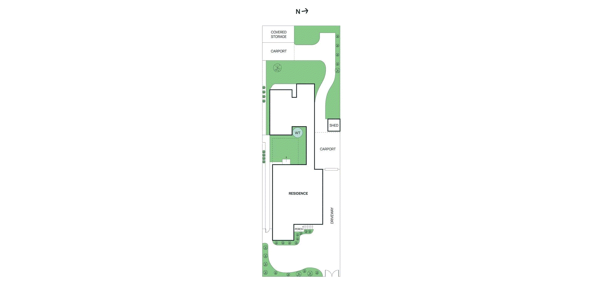
30 Hilda Street, Balwyn, VIC

Sales Advisory
  • bed icon 5
  • bath icon 2
  • parking icon 805 m²
  • parking icon 3
image
  • Tim Picken, Buyers Advocate Boroondara
Tim Picken
  • Photos
  • Floor Plans
Contact Us To Discuss Your Next Property Purchase
buyerx_logo
Book a Free
Consultation
Or fill out a form Free Consultation