image

6-8 St Georges Avenue, Templestowe, Vic

Buyers Advocacy
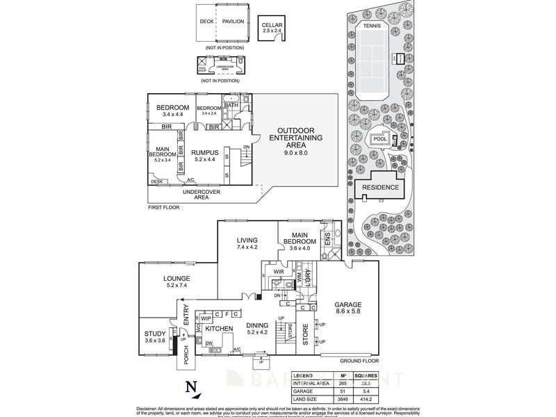
  • bed icon 4
  • bath icon 2
  • parking icon 3848
  • parking icon 2
image
  • Nuno Raimundo, Buyers Advocate Melbourne Inner North
Nuno Raimundo
  • Photos
  • Floor Plans
Contact Us To Discuss Your Next Property Purchase
buyerx_logo
Book a Free
Consultation
Or fill out a form Free Consultation