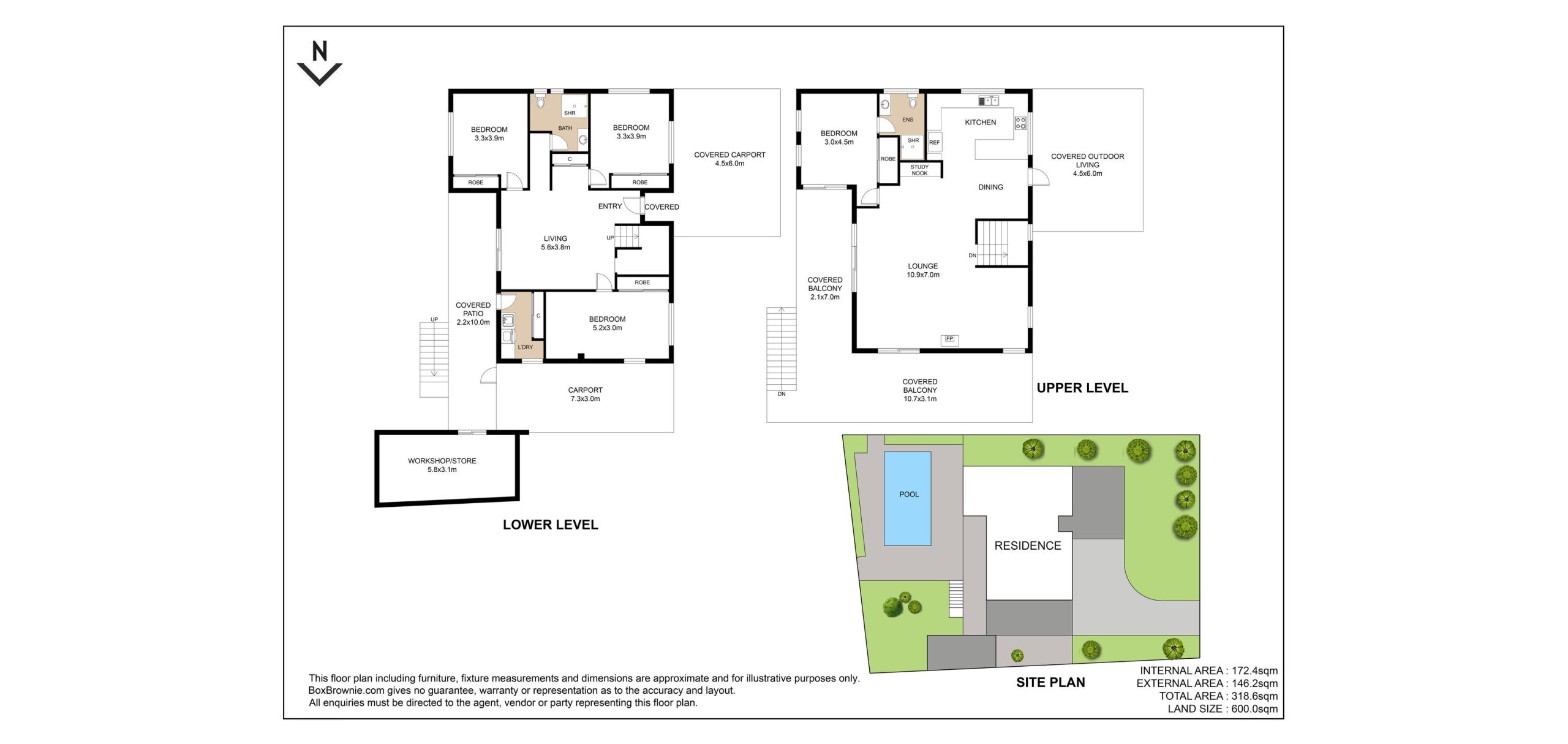
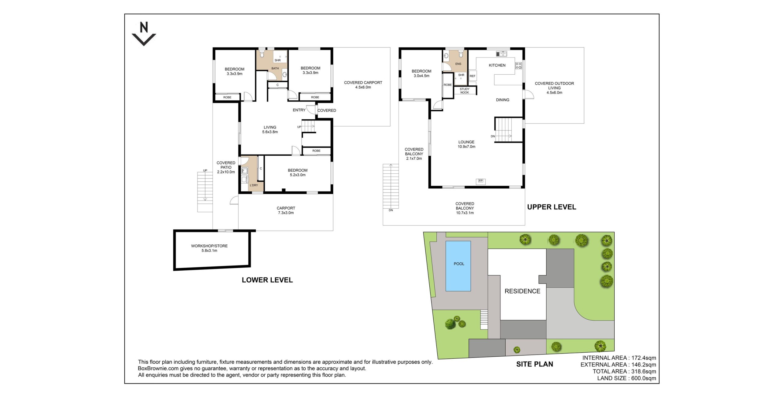
8 Paluma Street, Sunrise Beach, QLD
- Home Recent Purchases 8 Paluma Street, Sunrise Beach, QLD
Kate & Edward Polk's Other Recent Purchases
-
Kate & Edward Polk13/1 Picture Point Crescent, Noosa Heads, QldView Details-
3
-
2
-
1
-
-
Kate & Edward Polk9 Coast View Parade, Doonan, QLDView Details-
3
-
2
-
5,815 m²
-
-
Kate & Edward Polk2/15 Doonella St, Tewantin, QLDView Details-
3
-
2
-
295 m²
-
1
-
-
Kate & Edward Polk27 Elanora Terrace, Noosa Heads, QLDView Details-
3
-
2
-
640 m²
-
3
-
-
Kate & Edward Polk8 Sands Avenue, Noosaville, QLDView Details-
4
-
2
-
680 m²
-
2
-
-
Kate & Edward Polk12 Samara Place, Noosa Heads, QLDView Details-
3
-
2
-
1,032 m²
-
2
-